NEWS DETAIL
Home / News / Company news / Honduras Cold Room Client Feedback

Honduras Cold Room Client Feedback

Views: 593     Author: Site Editor     Publish Time: 2019-04-24      Origin: Site

Honduras Cold Room Client Feedback

It's already about three years after my Honduras client bought the sausages cold room .

And now my client sent me messages that the cold room are working good.

Hope to see you soon .


chat1

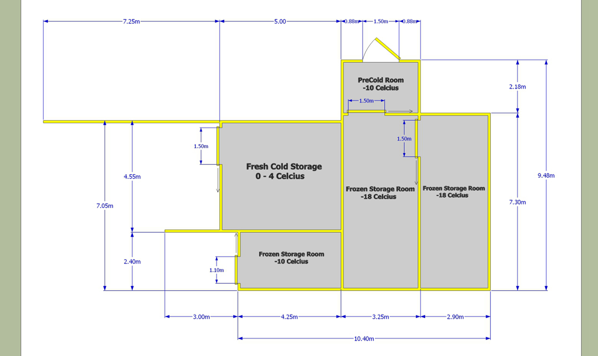
Cold room drawing from YOYCOOLwww.yoycool.cn-cold room 1www.yoycool.cn-Cold room 2www.yoycool.cn-Cold room 3www.yoycool.cn-cold room 4

Home
Copyright  2018 Hangzhou yoycool technology co.,ltd All rights reserved.    Support:sdzhidian